Oisu kogukonna- ja õppehoone arhitektuurivõistlus

2026

Linda Li Arro, Anete Samelselg, Rasmus Ink, Gredy Lillipuu, Ioannis Lykouras

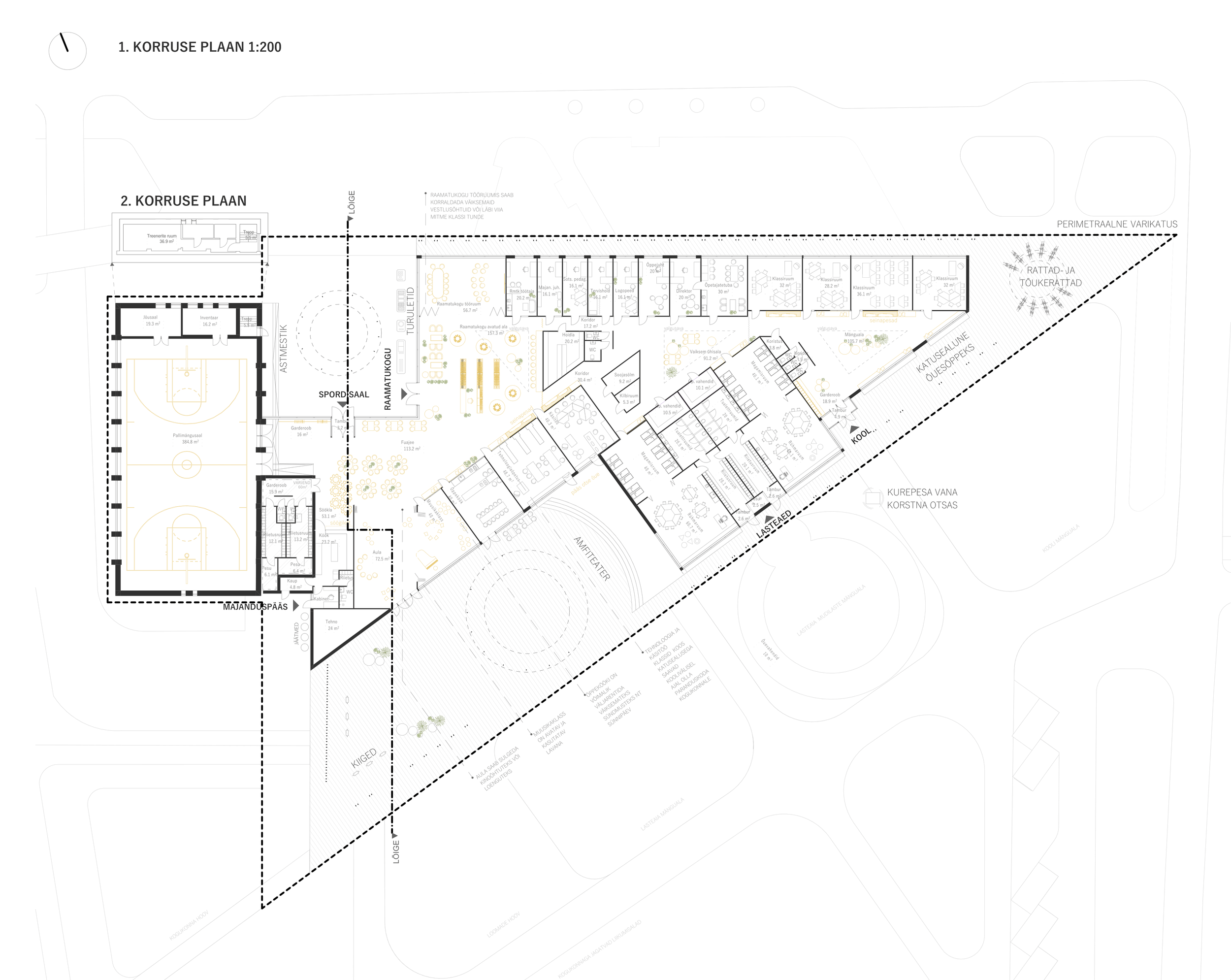
Arhitektuurivõistluse eesmärk oli leida parim kavand kooli, lasteaia ja raamatukogu ühise õppehoone ning välialade rajamiseks. Kaasaegne hoone koos spordisaaliga toimub kogukonna ja kogu aleviku keskusena.

Olulisele kohale on seatud lasteaia kui ka kooliõpilaste mugav pääs päiksega õuealale, sest õuevahetunnis liigutakse kordades rohkem kui toas. Kogukonna ruumid on grupeeritud hoone keskmesse ning hakkavad tööle hoone südamena. Kogukonnale tekib tänavapoolne õhtuväljak, kus saab pidada laata ja muid väiksemaid üritusi. Hoovis on aga amfiteater ja kogukonnaaed.

Tugeva sümbolina säilib olemasolev korsten koos kurepesaga, kuhu linnud juba 20 aastat kevadeti naasevad.