Iidla põhikooli arhitektuurivõistlus

Linda Li Arro ja Anete Samelselg

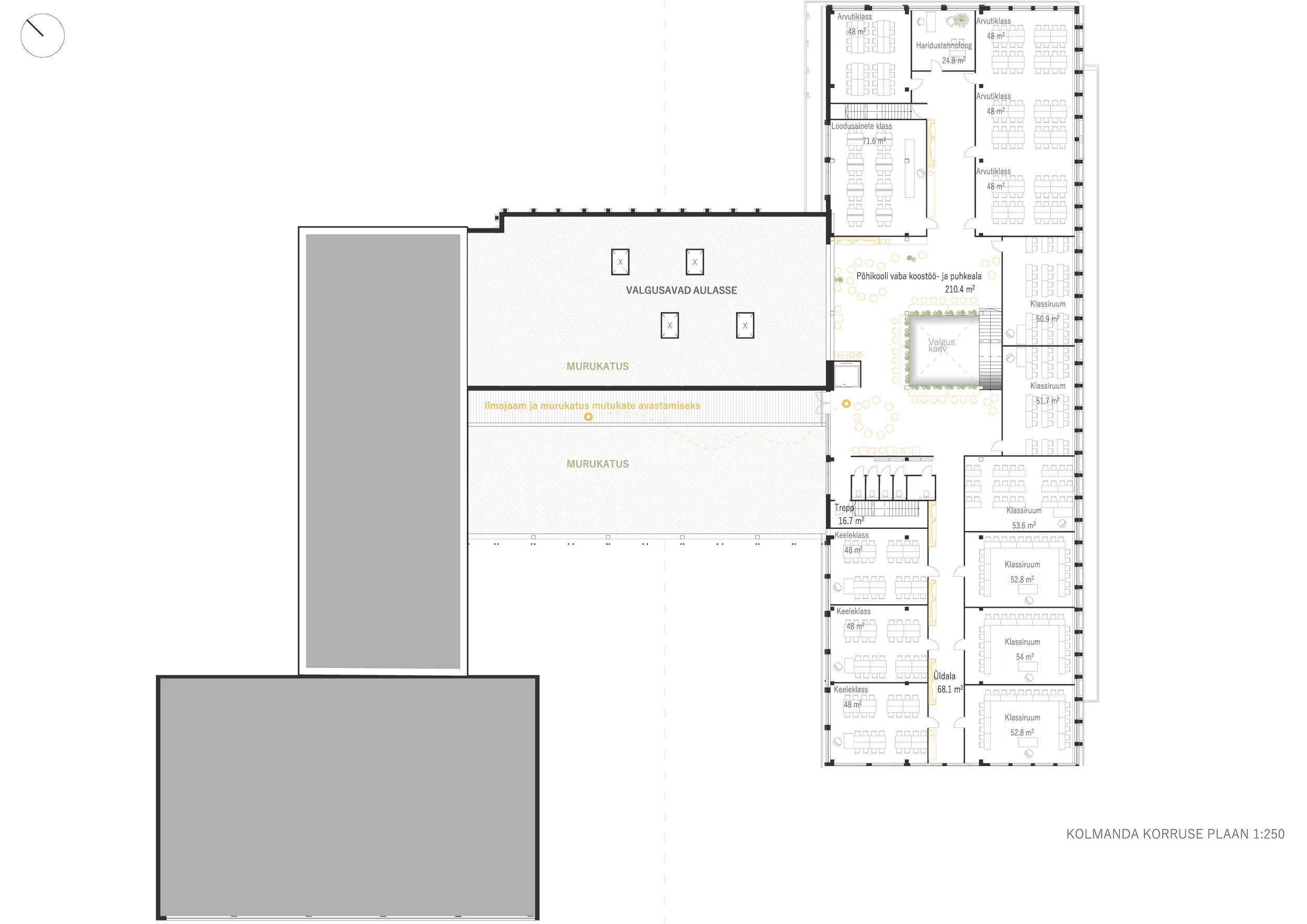
Iidla põhikooli arhitektuurivõistlus, H kujuline koolihoone, rekonstrueerimine

2025

Oma kool poeb ühel või teisel moel meile südamesse. See on justkui teine kodu, kuhu on alati soe tagasi tulla. Iidla uus koolimaja kannab seda mõtet endas ning loob keskse kooli südame, kus kogu koolipere kokku saab.

Teise kodu on koolis saanud ka vana hoone jupid, mis samal otstarbel enam kasutust ei leia. Nad saavad nüüd kokku näiteks esindusväljaku trepil, õuepingil või paviljonis.

H kujuline koolihoone, demonteerimine

Et olla suur, peab olema olnud väike. Iidla koolimaja puhul aga vastupidi. Koolimaja on nüüd koht, kus on ära tundmisrõõmu ja uut avarust suureks kasvamiseks. Olemasolevast konstruktsioonist on alles jäetud postid, talad ja enamik laepaneele. Lammutatud osa laepaneelid leiavad teise kodu välielementidena ning betoonist välisseinad saavad pinnase täiteks maastikukujundusel. Uus konstruktsioon on samuti post-tala süsteemis ning vastukaaluks olemasolevale betoonile kasutatame ristkihtliimpuitu.